Your Cart
Loading
Only -1 left

Linda Handicapped Accessible Home | 3 bedrooms 2 1/2 baths | Bonus Room | Safe Room | 2217 heated sq ft | PDF download

On Sale
$79.95
$79.95
Added to cart

The Linda Home Plan – 3 Bedroom, 2.5 Bath Modern Ranch House Design with Safe Room, Bonus Room & Accessible Bathroom | Digital Floor Plan Download (PDF Blueprints)


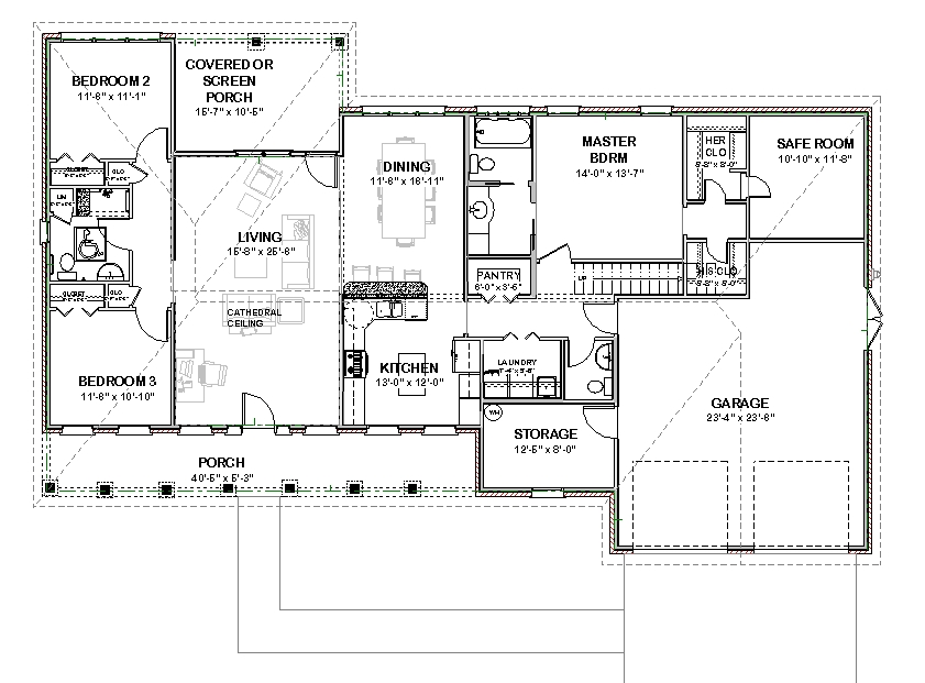
The Linda Home Plan is a thoughtfully crafted modern ranch-style home plan that blends comfort, charm, and practical living. This 3-bedroom, 2.5-bathroom house design includes a safe room, bonus room, and a handicap-accessible bathroom, making it perfect for families, retirees, or anyone wanting a functional small family home with timeless appeal.


This is a DIGITAL DOWNLOAD — no physical products will be shipped. You’ll receive professional, construction-ready blueprints (PDF format) you can print instantly at home or through your favorite print shop.


What’s Included

Your purchase comes with a complete, detailed set of house plans and digital blueprints ready for your builder or permitting office:


✅ Front, Rear & Side Elevations

✅ Floor Plan Layout

✅ Foundation Plan (Slab-on-Grade)

✅ Footing Details

✅ Roof Framing Plan

✅ Electrical Plan

✅ Door & Window Schedules

✅ Cabinet Details

✅ Wall & Cross Sections

✅ IRC Compliance Notes & 120mph Wind Rating (where applicable)

✅ Bonus: Some plans include 3D Views & Ceiling Framing Details


Sized for 24" x 36" printing — scalable for 11x17, 18x24, or full permit size.


The Linda Home Specs


Heated Living First Floor: 1,492 sq. ft.

Bonus Room: 325 sq ft

Total heated: 2217 sq ft

Porches: 433 sq. ft.

Garage/Storage: 917 sq ft: 

Total Area Under Roof: 3,567 sq. ft.


Dimensions: 78'-11" W x 49'-5" D x 22'-10" H


Ceilings: 9’ standard with Cathedral ceiling in Living, Vaulted to 8' in Bonus Room above garage. 


Roof: Hip roof 10:12


Exterior: Brick Veneer and Vinyl Siding or Hardiboard


Foundation: Raised Slab


Why You’ll Love This Modern Ranch Home Plan


✔️ Instant Access – Download immediately, no waiting or shipping delays

✔️ Easy to Print – Use at home or a local print shop in multiple sizes

✔️ Affordable and Reusable – One low price for unlimited prints

✔️ Expertly Designed – Created by a residential designer with over 40 years of experience

✔️ Permit & Builder Ready – Includes standard drawings for construction and approval


What’s Not Included


Architectural or Engineering Stamp (check local requirements)


Site Plan (specific to your property)


HVAC, Plumbing, or Energy Calculations


Material List or Custom Revisions


 How It Works


Purchase the listing.

Check your email for your instant download link

Save the file and print your blueprints at your convenience.

You have complete control over how many sets you print and the paper size used.


 Important Notes


This is a digital product — no refunds or exchanges after file delivery.


All designs are copyright protected and may not be resold or shared.


Bring your dream home to life with The Linda Home Plan — a small family house design that delivers modern comfort, accessibility, and lasting value in one affordable package.


Add to Cart & Download Instantly — start building today!

You will get a PDF (2MB) file