Your Cart
Loading
Only -1 left

Denise Ranch Home Plan | 3 Bed, 2 Bath (PDF Download)

On Sale
$59.95
$59.95
Added to cart

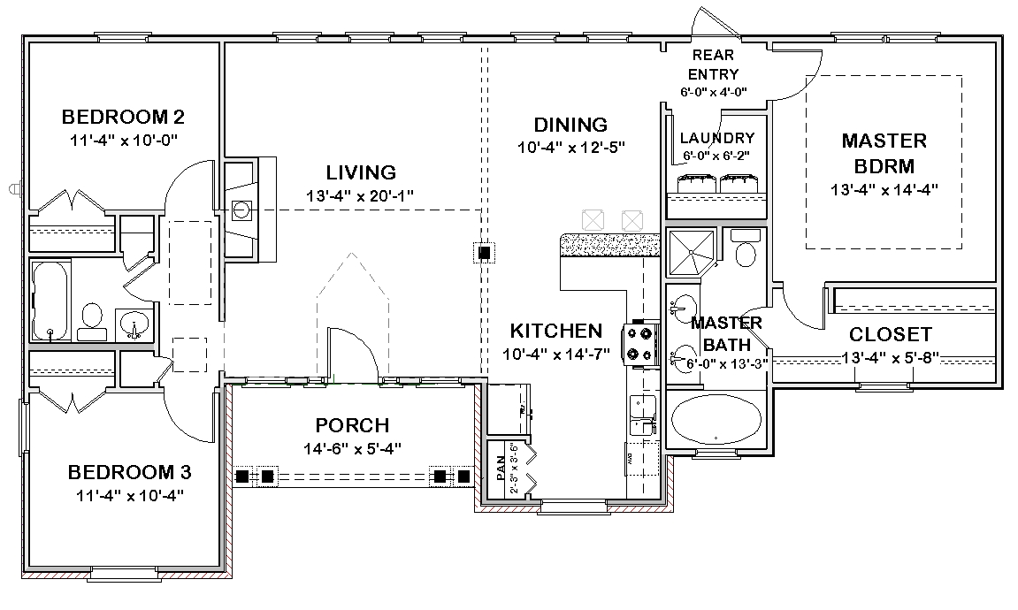
The Denise Ranch House Plan is a thoughtfully designed 3-bedroom, 2-bathroom split home perfect for a growing family, retirement build, or investment property. With a clean and functional layout and a classic hip and gable roof, this plan brings affordability, comfort, efficiency, and style together in one smart package.


This is a DIGITAL DOWNLOAD. No physical plans will be shipped. You'll receive your construction-ready blueprints instantly via email as a PDF file you can print locally.


Denise Home Specs:

Heated Living Area: 1495 sq. ft.

Covered Porches: 89 sq. ft.

Total Under Roof: 1584 sq. ft.


Home Dimensions: 58'-6" W x 32'-5 1/2" D x 21'-0" H


Ceiling Height: 8' throughout with Cathedral Ceiling in Living Room, Tray Ceiling to 9'-0" in Master. 


Roof: Hip with 10:12 pitch


Exterior Finish: Brick Veneer and vinyl siding


Foundation: Slab-on-grade (looking for a crawlspace version? Click here: https://payhip.com/b/CrobY


What’s Included in Your Plan Set:

Your full construction blueprint set includes everything needed for permitting and building (PDF format, 24”x36”):


✅ Front, Rear & Side Elevations


✅ Detailed Floor Plan


✅ Foundation & Footing Plans (Pier & Beam)


✅ Electrical Plan


✅ Roof Framing Plan


✅ Door & Window Schedules


✅ Cross Sections & Wall Sections


✅ Cabinet Details


✅ General Construction Notes (IRC Code & 120mph Wind Zone)


✅ May include 3D views or ceiling framing details where applicable


 Please Note – Not Included:

--Architectural or Engineer’s Stamp (check your local building code)

--Site Plan (specific to your lot)

--HVAC, Plumbing Layouts, or Energy Reports

--Materials List or Custom Revisions


Why Choose a Digital PDF Plan?

--Instant Access – No waiting for shipping

--Unlimited Prints – Print as many sets as you need, whenever you need

--Flexible Sizes – Print full-size (24x36”) for permits, or half-size (11x17” or 18x24”) for your builder or subs

--Cost Savings – Avoid expensive reprints or delays


Professional Design – Created by a Residential Designer with 40 years of real-world experience


 Important Info:

This plan is copyrighted and intended for personal use only. No resales or redistribution allowed.

Because this is a digital product, all sales are final and non-refundable.


Ready to build your dream home?

Add The Denise Plan to your cart and download your blueprints instantly today!

You will get a PDF (1MB) file